【見学会】3/20(金祝)~3/29(日)|島田市岸町|平屋のように暮らす2階建ての住まい|「KIBACO(セミオーダー住宅)」


島田市岸町に
平屋のように暮らす2階建てのお住まいが完成します。
お施主様のご厚意により
お引渡し前の大切なお家をお借りして開催する見学会です。
見学会概要
期間:2026年3月20日(金祝)~29日(日)
時間:10時~17時(最終受付:16時)
※1時間ごとの完全事前予約制
場所:島田市岸町
📍ハラダ製茶様より車で1分
※住所詳細はご予約後にお伝えいたします。
HOUSE TYPE:
セミオーダー住宅 KIBACO
3LDK+ウォークイン+吹き抜けホール+土間収納
延床面積:29.00坪 / 施工面積:34.76坪
HOUSE SPEC:
HEAT20G2/UA値0.43
C値0.19
断熱等性能等級6(静岡7地域)
認定長期優良住宅
省令準耐火構造
耐震等級最高等級3
こだわり POINT
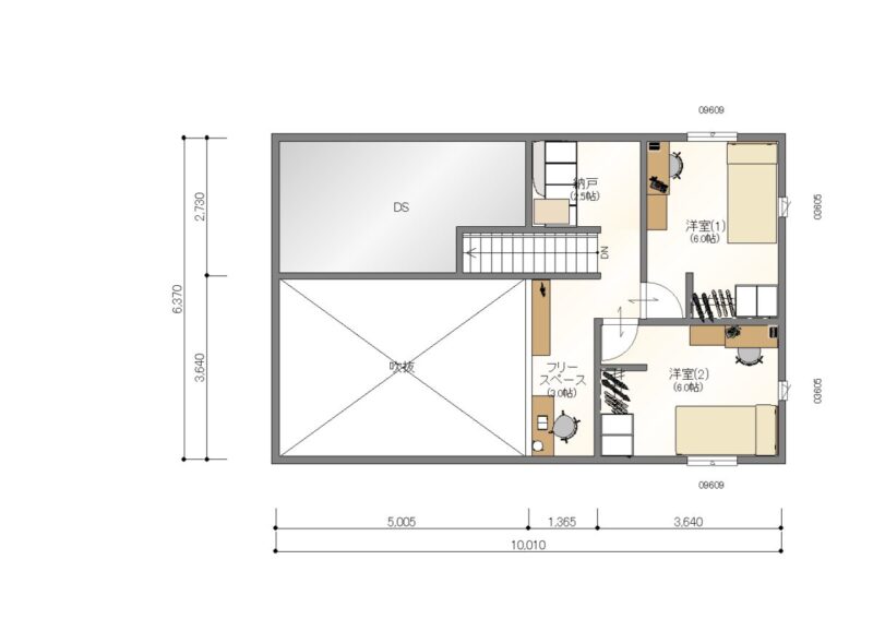
▪ 2階建てなのに1階で生活が完結する間取り
▪ 吹抜け天井で開放的なLDK
▪ 吹抜けとつながるフリースペース
▪ どんなインテリアにも馴染むオークの無垢床
▪ 手入れが楽な塗り壁の外壁
▪ 高断熱・トリプルガラスの自然派住宅
-
こだわりPOINT 1:2階建てなのに1階で生活が完結する間取り
生活のしやすさを考えて、1階に寝室・クローゼットを設けました。
ランドリーで干した洗濯物は2階に上がらず、そのままクローゼットへ仕舞えます。
濡れた重たい洗濯物を2階にもっていく手間もなく、家事ラクが叶います。


-
こだわりPOINT 2:吹抜け天井で開放的なLDK
身長183センチのお施主様も開放的に感じるLDK。
吹抜け天井で圧迫感がなく、
畳数以上の広さを感じられます。


-
こだわりPOINT 3:吹抜けとつながるフリースペース
プライベートを確保しつつ、人の気配も感じられるフリースペース。
本棚を置いたり、デスクを置いたり、
趣味部屋としても。


-
こだわりPOINT 4:どんなインテリアにも馴染むオークの無垢床
無垢床の中でも癖がなく、どんなインテリアにも馴染むオークを
床材に使用しました。
夏はさらっとべたつかず、冬はヒヤッと感じにくい
無垢床の心地よさもご体感いただけます。

-
こだわりPOINT 5:手入れが楽な塗り壁の外壁
外壁には防汚性、透湿性、施工性、メンテナンス性、安全性を備えた
塗壁を使用しました。
多くの塗り壁では使用できない高圧洗浄でのお手入れができ、
キレイを長く保ちます。


_
こだわりPOINT 6:高断熱・トリプルガラス樹脂サッシ
デザインにこだわった住まい。
だけども冬は寒くてどうしようもない、夏は暑くていられない、ではさみしいですよね。
デザインだけでなく生活のしやすさも考えて、しっかりと熱の出入りをカットできる
〈トリプルガラス樹脂窓〉を標準採用。
〈トリプルガラス樹脂サッシ〉
快適な空気が逃げていく「窓の熱損失」を防ぐため、
従来の住宅窓と比較して約4倍の断熱効果を誇る
世界トップクラスの高性能
トリプルガラスYKK APW430を標準仕様。
_
_
期間:2026年3月20日(金祝)~29日(日)
時間:10時~17時(最終受付:16時)
※1時間ごとの完全事前予約制
場所:島田市岸町
📍ハラダ製茶様より車で1分
※住所詳細はご予約後にお伝えいたします。
〈ご予約方法〉
①LINE:下記ボタンクリック
(24時間対応)
②電話予約:054-645-5900(藤枝支店)
対応時間:9時~18時
🎁 ご予約特典 🎁
HOME&Cafe XOXOのランチ無料券プレゼント
リビングディー藤枝支店併設のカフェ
HOME&Cafe XOXO。
同一世帯のご家族皆様でお楽しみいただける
ランチ無料券をご用意いたします。

みなさまのご来場お待ちしております♩





