KIBACO平屋+ロフトG3sto モデルハウスはコンパクトながらも
平屋暮らしを快適に過ごせるちょうどいい間取り。
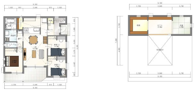
モデルハウスは3LDK+ロフト21.50坪です。

KIBACO平屋G3stoは超高性能規格住宅です。
他にも玄関の方位が違うタイプや2LDK+ロフトのタイプもあります。
ご自身のお好みや土地にあった間取りで建築可能です。
今週末の3月2・3日は見学会と合わせてプチセミナーも開催中。
見学と合わせてお家づくりのお得な知識も知ってください。
KIBACO平屋+ロフトG3sto モデルハウスはコンパクトながらも
平屋暮らしを快適に過ごせるちょうどいい間取り。
モデルハウスは3LDK+ロフト21.50坪です。

KIBACO平屋G3stoは超高性能規格住宅です。
他にも玄関の方位が違うタイプや2LDK+ロフトのタイプもあります。
ご自身のお好みや土地にあった間取りで建築可能です。
今週末の3月2・3日は見学会と合わせてプチセミナーも開催中。
見学と合わせてお家づくりのお得な知識も知ってください。